ARMAT Қозғалиқыш қорғанысы автоматты ажыратқышы A6 GV2P 6,3-10А IEK
Тапсырыс беру
Менеджермен тексеріңіз1
Жоқ
76.4
КИТАЙ
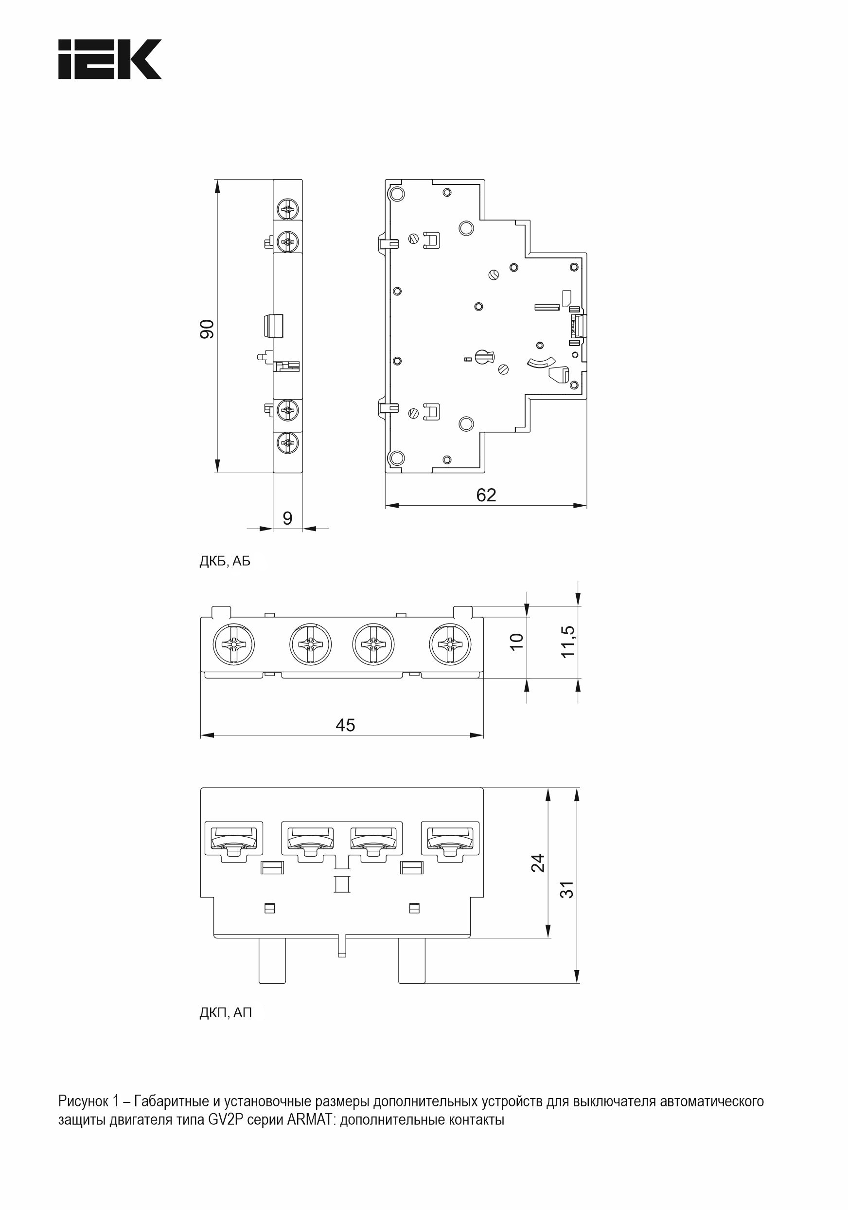
90
690
45
10
5
6.3-10
DIN рейкаға орнату
термомагнитті
Дана
15
бұрандалы қосылым
0.406
100
130
0.000615
10
IEK
12000
8536201007
-25 +60 °C
2.2; 3; 7.5 кВт
20
3
Бұл өнімге арналған бейне жоқ.
Бұл өнімге әлі шолулар жоқ. Сіз бірінші бола аласыз!
Пікір қалдыру үшін жүйеге кіріңіз.




