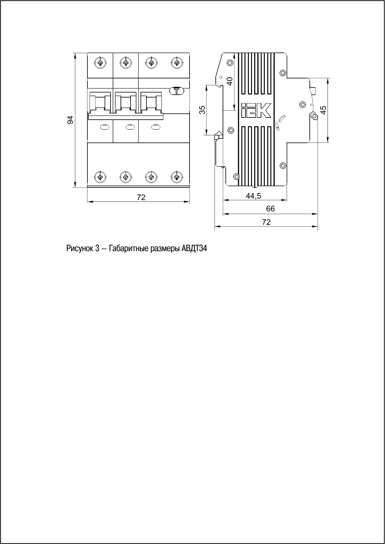
АВДТ 34 С10 30мА ИЭК дифференциалды тоқтың автоматты ажыратқышы
Қоймада
КИТАЙ
иә
15
иә
DIN-рейкаға
400
Дана
10
0.473
IP20
3
25
Жоқ
0.000803
C
IEK
30
8536201007
A
84
50 Гц
4
жылулық; электрмагниттік
4
жоқ
иә
Бұл өнімге арналған бейне жоқ.
Бұл өнімге әлі шолулар жоқ. Сіз бірінші бола аласыз!
Пікір қалдыру үшін жүйеге кіріңіз.
