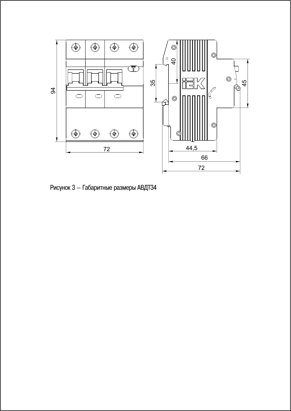
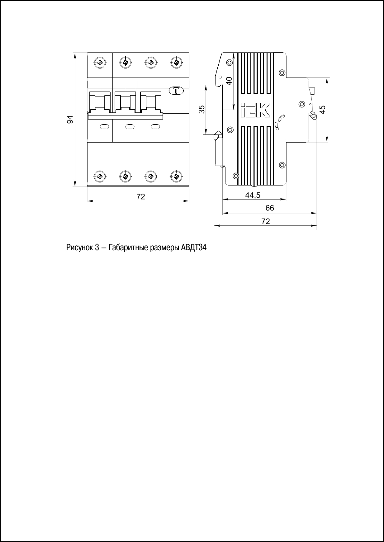
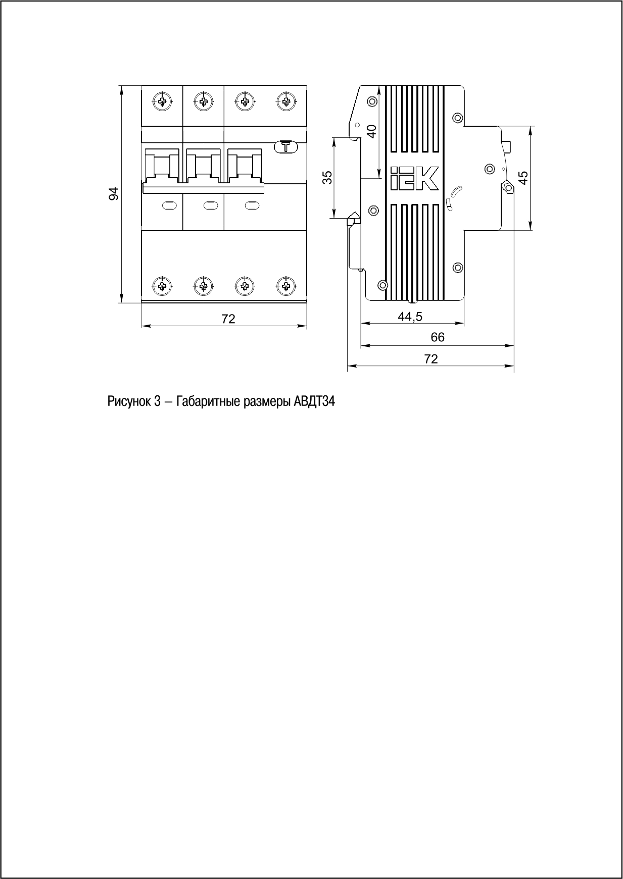
АВДТ 34 С32 30мА ИЭК дифференциалды тоқтың автоматты ажыратқышы
Қоймада
жоқ
иә
иә
КИТАЙ
иә
15
DIN-рейкаға
400
Дана
32
3
0.493
IP20
Жоқ
25
0.000795
C
30
IEK
A
8536201007
84
50 Гц
жылулық; электрмагниттік
4
4
Бұл өнімге арналған бейне жоқ.
Бұл өнімге әлі шолулар жоқ. Сіз бірінші бола аласыз!
Пікір қалдыру үшін жүйеге кіріңіз.
