ARMAT Қозғалиқыш қорғанысы автоматты ажыратқышы A6 GV2P 14,5-20А IEK
Тапсырыс беру
Менеджермен тексеріңізбұрандалы қосылым
3
50
8
10A
бұрандалы қосылым
термомагниттік
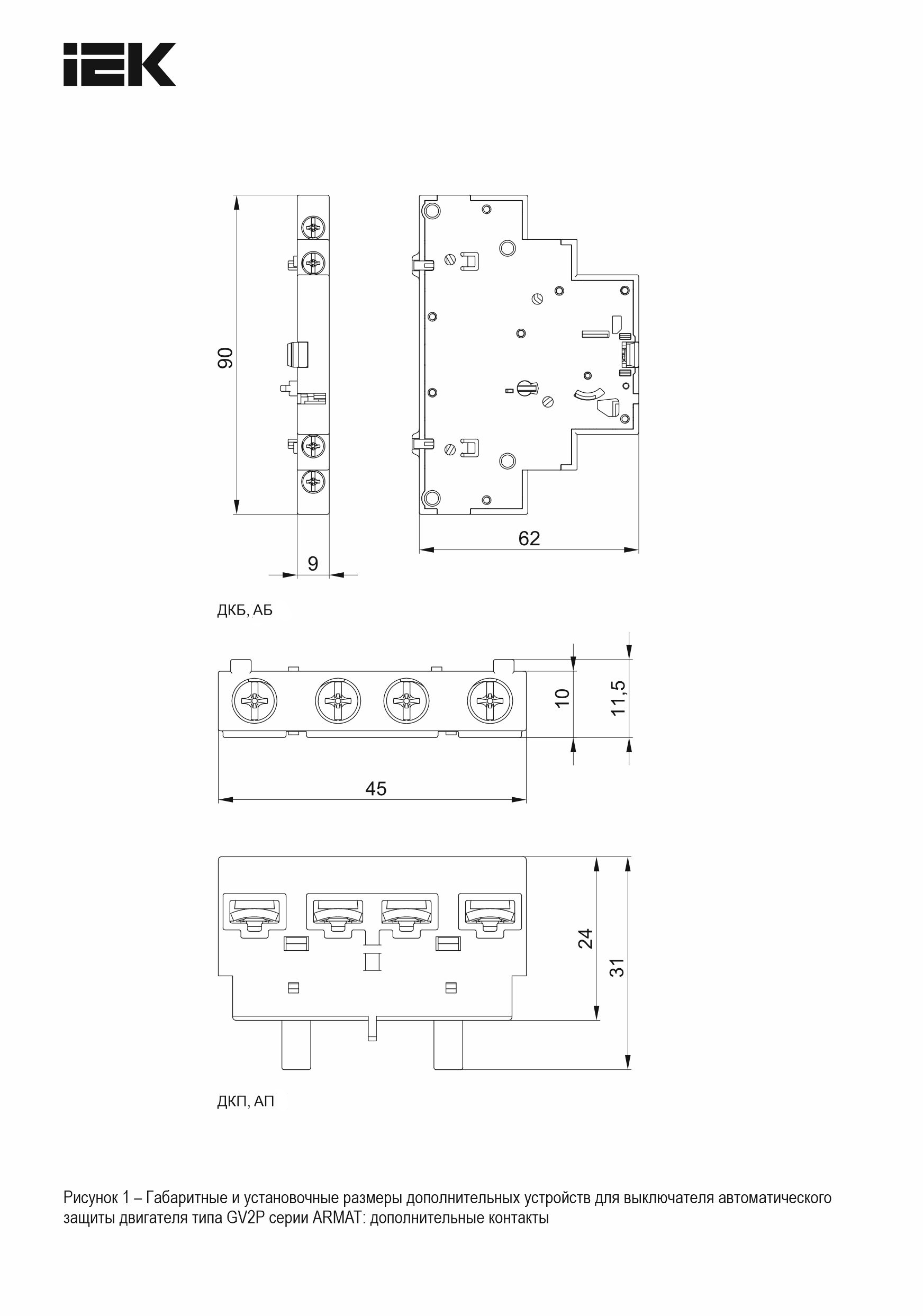
90
12 000
КИТАЙ
45
AC
76.4
3
5
УХЛ 4
қайтымсыз
Дана
20
10
0.411
20
0.000629
15
IEK
DIN-рейкаға
8536201007
230; 400; 690
1
-25+60°C
Жоқ
Бұл өнімге арналған бейне жоқ.
Бұл өнімге әлі шолулар жоқ. Сіз бірінші бола аласыз!
Пікір қалдыру үшін жүйеге кіріңіз.




