Пластикалық корпус ЩРН-П-36 модульдері аспалы қара IP41 ИЭК

аспалы
Жоқ
-20+80 °C
УХЛ3
тарату қалқаны
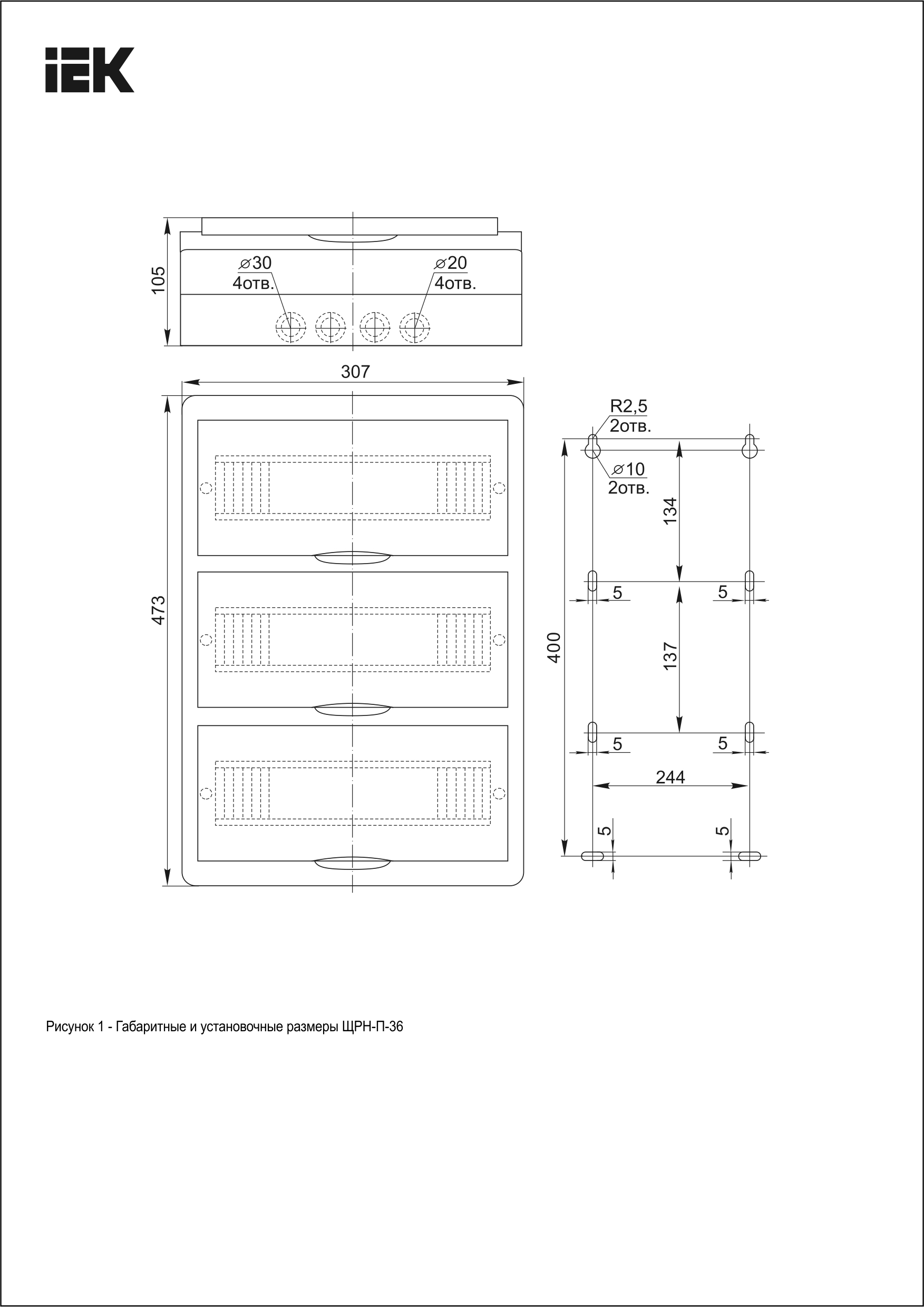
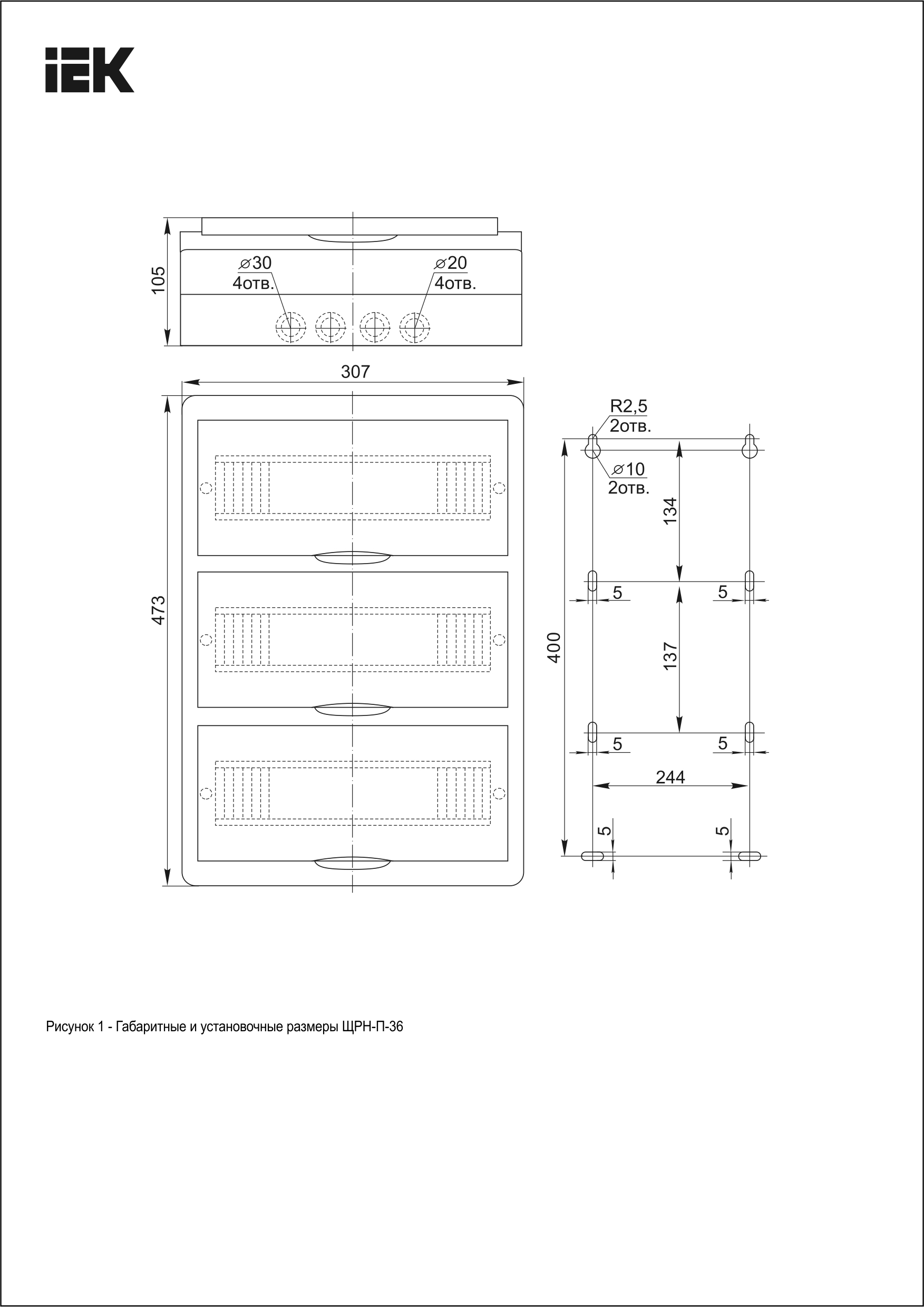
36
РОССИЯ
2
төменнен
жабық түрдегі
4
Дана
230-400
40
2.13
473
100
307
3
0.019
99
660
IEK
қара
жоқ
9403700008
ABS пластик
Жоқ
41
Бұл өнімге арналған бейне жоқ.
Сертификаттар
Мұрағатты жүктеп алуБұл өнімге әлі шолулар жоқ. Сіз бірінші бола аласыз!
Пікір қалдыру үшін жүйеге кіріңіз.